Jump to content

Alpinsenter

Lemonsjøen Alpinsenter byr på ekte og 
familievennlig skikjøring i rolige omgivelser.

Kjøp heiskort

Polar 88 stue

Polar 88

Fra 4.450.590,-

Prisene er veiledende og kan variere. Totalprisene er beregnet ut fra billigst tomt, valgt hyttemodell og aktuelle tilleggskostnader, men endelig pris kan avvike. Ta gjerne kontakt for et konkret tilbud.

BRA
75,2 m2
BYA
85,2 m2
GUA
108,1 m2
Hemsrom
3
Soverom
2

Kontakt oss

En kompakt, men likefullt romslig og luftig hyttemodell. Med oppholdsrommene plassert i front av hytta er naturens mange opplevelser og overraskelser tilgjengelig til enhver tid. Fra sofakroken, spiseplassen eller kjøkkenbenken. Fremskutt midtparti gir hytta en lys og luftig stue med utsikt i tre retninger. Vinkelutbygget i front skaper gode, lune uteplasser tilpasset skiftende vær- og vindforhold. Utmerket for utsiktstomter – som i nettopp hyttefeltet Utsikten.

Levert av Nordlyshytter
For mer informasjon og leveransebeskrivelse, se her.

Tegninger

Illustrasjonen vil alltid avvike noe fra de faktiske forholdene. Vi tar ikke ansvar for eventuelle feil.

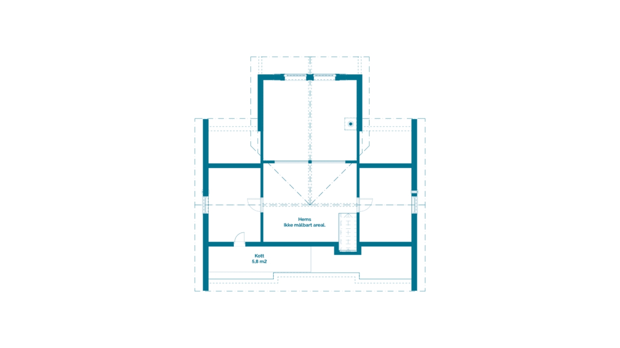
1. etg
Hems
Polar 88 eksteriør
Polar 88 eksteriør3
Polar 88 stue peis
Polar 88 peis kjøkken umøblert
Polar 88 spisebord
Polar 88 trapp
Polar 88 hems
Polar 88 gang
Polar 88 stue2
Polar 88 toalett
Polar 88 bad
Polar 88 stue3
Polar 88 umøblert
Polar 88 eksteriør2